fritidshus 51, modern

Modernt fritidshus med högt tak i storstugan. Lägg märke till de högt sittande fönstren. Det stora takutsprånget skyddar uteplatsen och skuggar fönsterpartierna.

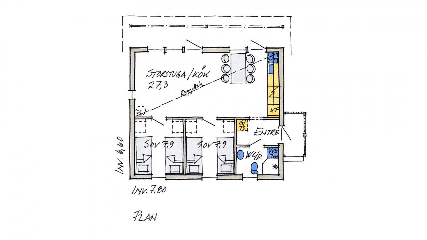
Planlösning

Nedanstående planlösningar är endast exempel. Alla våra hus är arkitektritade och anpassade efter era önskemål. Kontakta oss så berättar vi mer.

Fasad

Kontakt

Vill du veta mer om Fritidshus 51, modern?

  • Obligatoriskt fält

  • Obligatoriskt fält

  • Obligatoriskt fält

  • Byggstart

  • Byggstart

  • Samtycke