fritidshus 66

Sportstugan för en aktiv fritid. Sätt in utrustningen i förrådet, kryp in i bastun innan vätskebalansen återställs i storstugan.

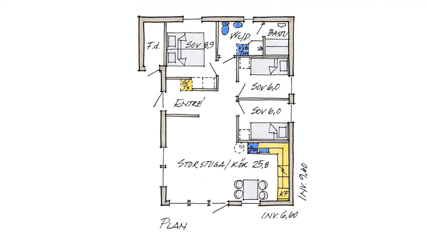
Planlösning

Nedanstående planlösningar är endast exempel. Alla våra hus är arkitektritade och anpassade efter era önskemål. Kontakta oss så berättar vi mer.

Fasad

Kontakt

Vill du veta mer om Fritidshus 66?

  • Obligatoriskt fält

  • Obligatoriskt fält

  • Obligatoriskt fält

  • Byggstart

  • Byggstart

  • Samtycke