fritidshus 68

Skyddad uteplats i vinkeln med fönsterdörrar både från storstuga och kök.

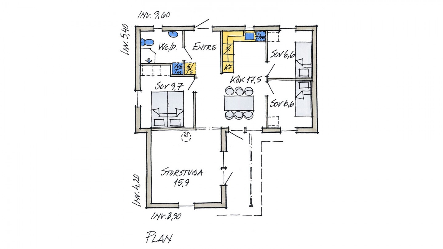
Planlösning

Nedanstående planlösningar är endast exempel. Alla våra hus är arkitektritade och anpassade efter era önskemål. Kontakta oss så berättar vi mer.

Fasad

Kontakt

Vill du veta mer om Fritidshus 68?

  • Obligatoriskt fält

  • Obligatoriskt fält

  • Obligatoriskt fält

  • Byggstart

  • Byggstart

  • Samtycke