Dyvik

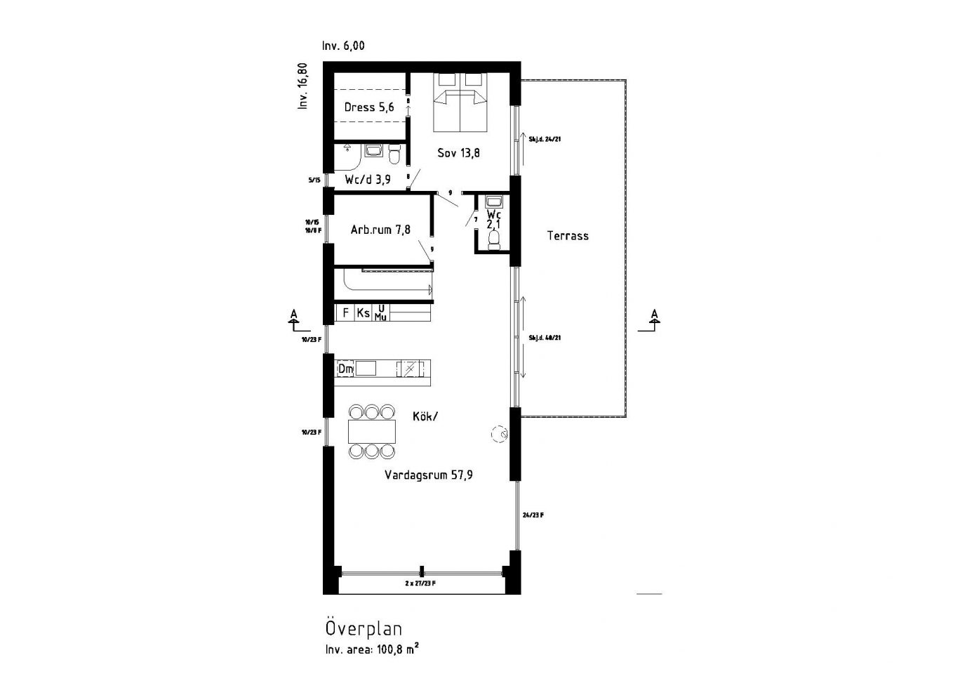
Dagens tomter innebär ofta utmaningar. Fin utsikt som är skymd på bottenplanet. Norrsluttning eller skugga. Dyvik tar vara på det bästa hos tomten. Kök-vardagsrum ligger på ovanplanet med stora fönster mot bästa utsikten. Uteplatsen ligger som en takterrass vid sidan och fångar därför in solen även om utsikten är mot norr och om marken är skuggad. På ovanplanet ligger master suite och arbetsrum. En gäst-WC gör föräldradelen ännu mer ostörd.

På bottenplanet ligger 3 barnsovrum kring ett allrum. Här finns även WC/dusch, klädkammare och klädvård med groventré. Huvudentrén leder ut på framsidan där utkragande ovanplan skyddar och knyter ihop med dubbelcarporten.

Planlösning

Nedanstående planlösningar är endast exempel. Alla våra hus är arkitektritade och anpassade efter era önskemål. Kontakta oss så berättar vi mer.

Den stora utmaningen är att lyssna av kunden för att hitta det där lilla extra som gör att just deras hus blir unikt.

Arkitekt Anita jonsson

Fasad

Ja, jag är intresserad av att veta mer!

Klicka på knappen nedan och fyll sedan i dina uppgifter. En representant tar sedan kontakt med dig och berättar mer om huset samt lyssnar förutsättningslöst in dina hustankar.

Utforska våra hus

Letar du efter något annat hus? Välj nedan eller kontakta oss så hjälper vi dig.